vectori_logo

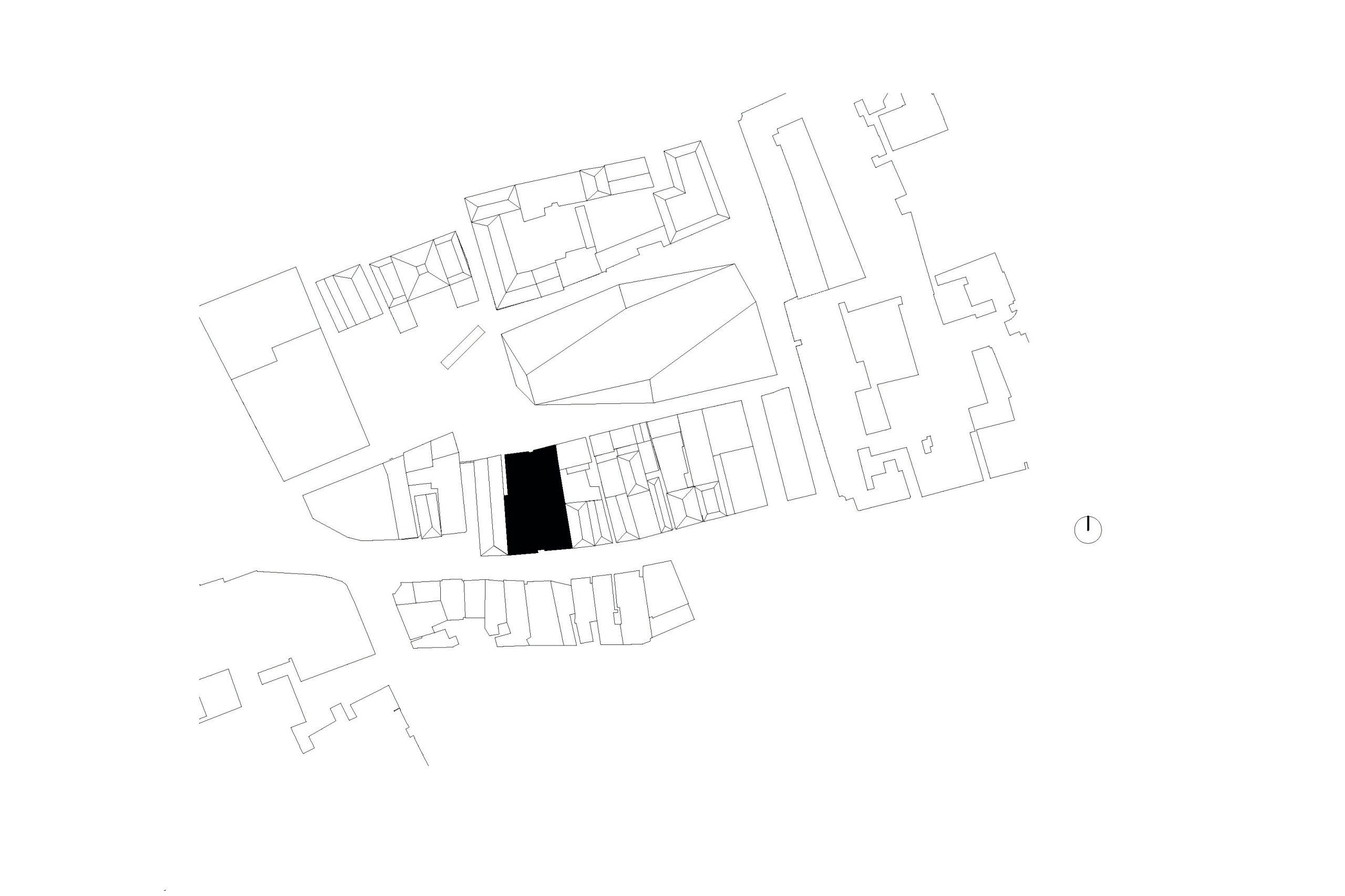
Vapiano

Locatie Groningen, Nederland

Jaar 2017

Volgend project

 

Helmond Brainport Smart District