vectori_logo

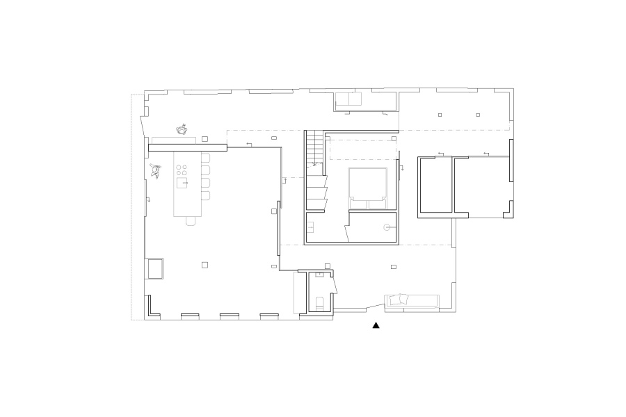
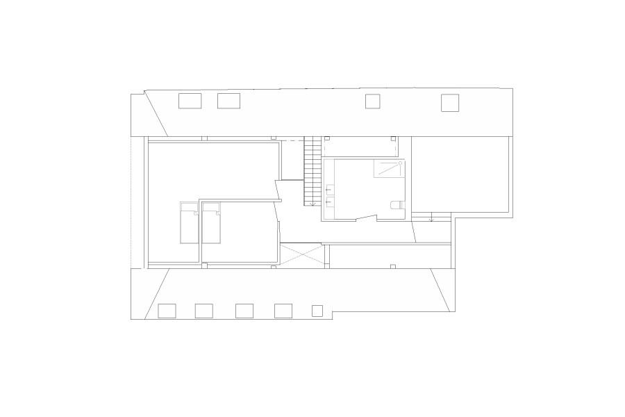
Huis in een huis

‘Als je binnen en buiten strikt verdeelt, mis je de rijkdom van alle gradaties daartussenin.’ Sou Fujimoto

 

 

 

Opdrachtgever Particulier

Locatie Peize, Nederland

Jaar 2022

Volgend project

 

Nieuwe Markt