vectori_logo

Woonmodules Heumen

Aan de Rijksweg te Heumen heeft de corporatie Oosterpoort 24 tijdelijke sociale huurwoningen gebouwd langs de route van de wandelvierdaagse van Nijmegen in een groene omgeving. We zijn heel trots op onze kleine bijdrage van deze tijdelijke sociale huurwoningen om het woningentekort in Nederland te bestrijden.

De woningen staan hier tijdelijk. De vergunning is afgegeven om de woningen 15 jaar op de plek te laten staan. De woningen zijn echter zorgvuldig in het landschap geplaatst, waardoor ze in combinatie met een mooie gezamenlijke tuin een hoogwaardige uitstraling hebben

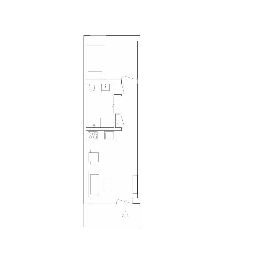
De woonmodules staan voor een nieuwe manier van bouwen: modulair, duurzaam, flexibel, losmaakbaar én betaalbaar. Het bouwsysteem bestaat uit bouwmodules samengesteld uit zoveel mogelijk natuurlijke materialen die slimme antwoorden geven op uiteenlopende huisvestingsvraagstukken. In dit geval worden de modules ingezet voor kleine, compacte huurwoningen (±30m2) voor de sociale sector. De woonmodules bieden de mogelijkheid om te wonen in een gezond binnenklimaat met veel comfort voor een betaalbare huurprijs.

We geloven in een vergaande transitie van de bouwindustrie om antwoorden te bieden aan de grote maatschappelijke vraagstukken; zoals woningtekort, sociale isolatie, emissies van schadelijke stoffen en materiaaltekort. Een industrialisering van de woningbouw in Nederland is een belangrijke pijler om tot goede, comfortabele en betaalbare woonruimte voor iedereen te komen. 

 

Opdrachtgever: Woningcorporatie Oosterpoort
Ontwikkelaar: mHome
Aannemer: Eco+ Bouw
Landschapsarchitect: Felixx Landscape Architects & Planners
Programma: 24 sociale huurwoningen met collectieve wasserette
Locatie: Heumen
Jaar: 2025

 

Volgend project

 

Huis in een huis