vectori_logo

Beschermd Wonen

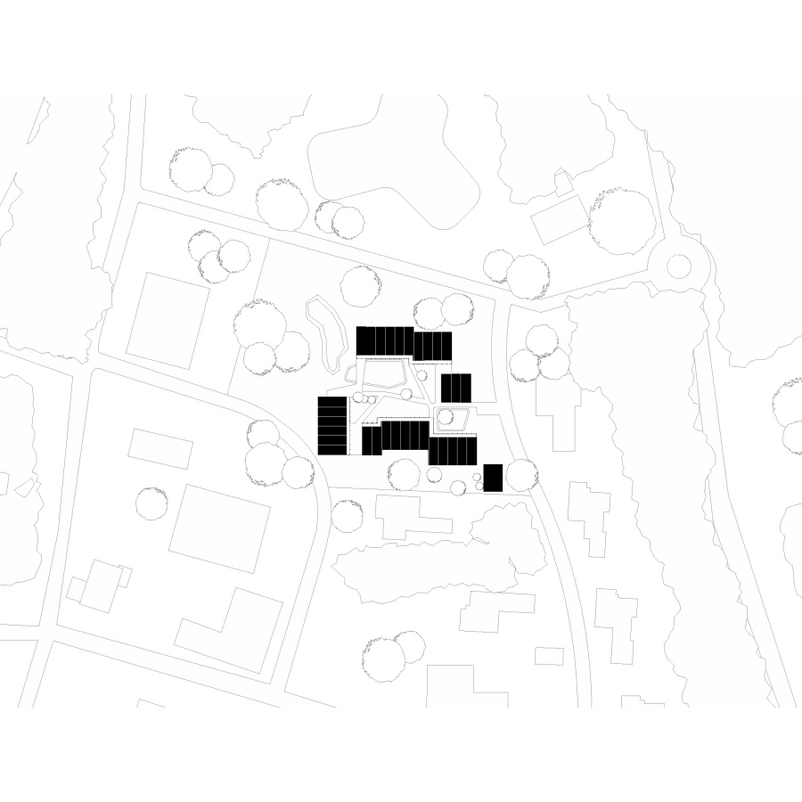
Op het woonzorglandgoed, Het Groot Graffel, nabij Warnsveld, wonen mensen met verschillende zorgindicaties samen in een groen park. Iedereen krijgt hier een fijne plek om in gezamenlijkheid te wonen.

We zijn heel blij met de realisatie van de zorgwoningen Beschermd wonen voor Tactus. Mensen kunnen hier zelfstandig wonen met ambulante woonbegeleiding voor verslavingsproblemen. ensemble samengesteld uit modulaire bouwstenen rondom een groen en open veld. Het veld biedt de bewoners ruimte voor ontspanning en ontmoeting in een beschutte en  overzichtelijke binnentuin.

De locatie is een tijdelijke invulling van het landgoed. De woningen zijn slechts voor een periode van 15 jaar gebouwd, maar hebben wel alle kwalificaties en kwaliteiten voor permanente bouw. Dat betekent dat de woningen voldoen aan het  Bouwbesluit voor permanente bouw. Vanuit de gedachte van tijdelijkheid zijn de woonmodules eenvoudig los te koppelen en als volledige modules te verplaatsen op een vrachtauto. De woonmodules kunnen na 15 jaar weer nieuwe, slimme antwoorden geven op dat moment actuele huisvestingsvraagstukken.

 

 

Opdrachtgever:  Tactus verslavingszorg

Ontwikkelaar: mHome

Aannemer: Eco+Bouw

Landschapsarchitect: Felix Landscape Architects & Planners

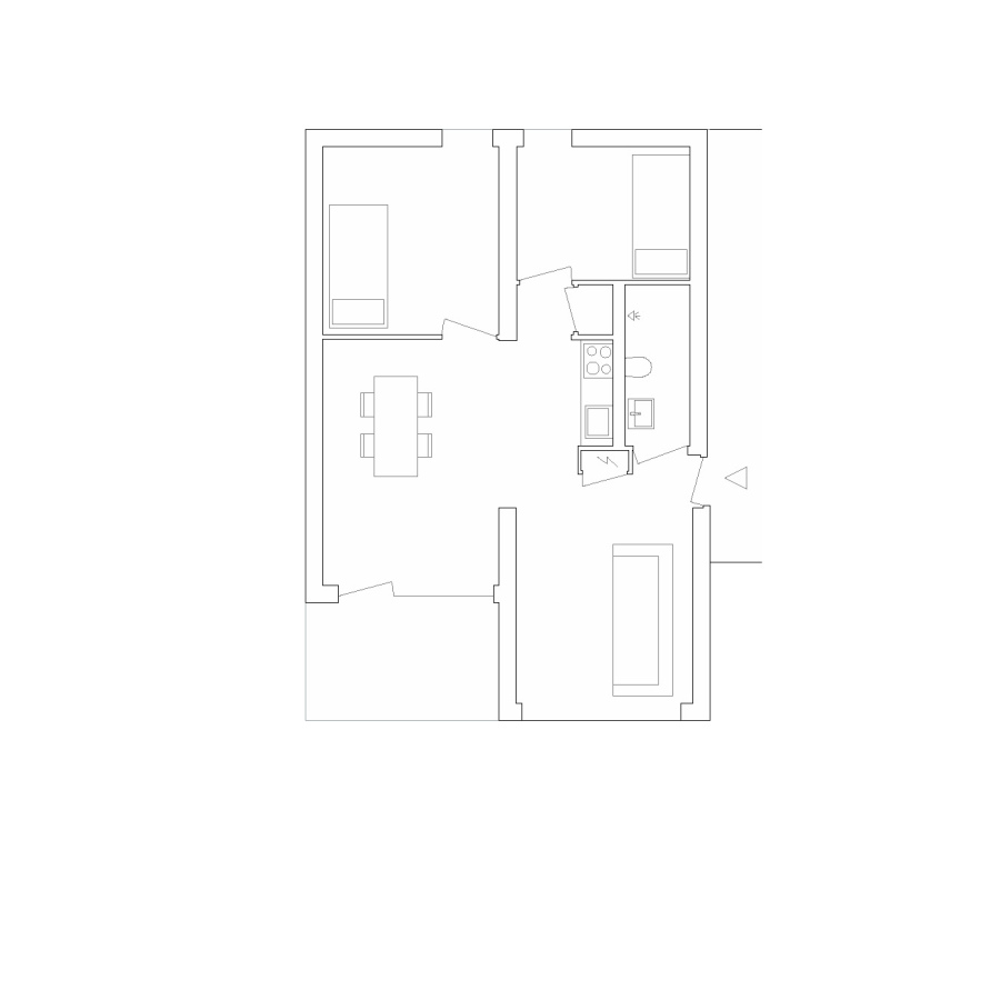
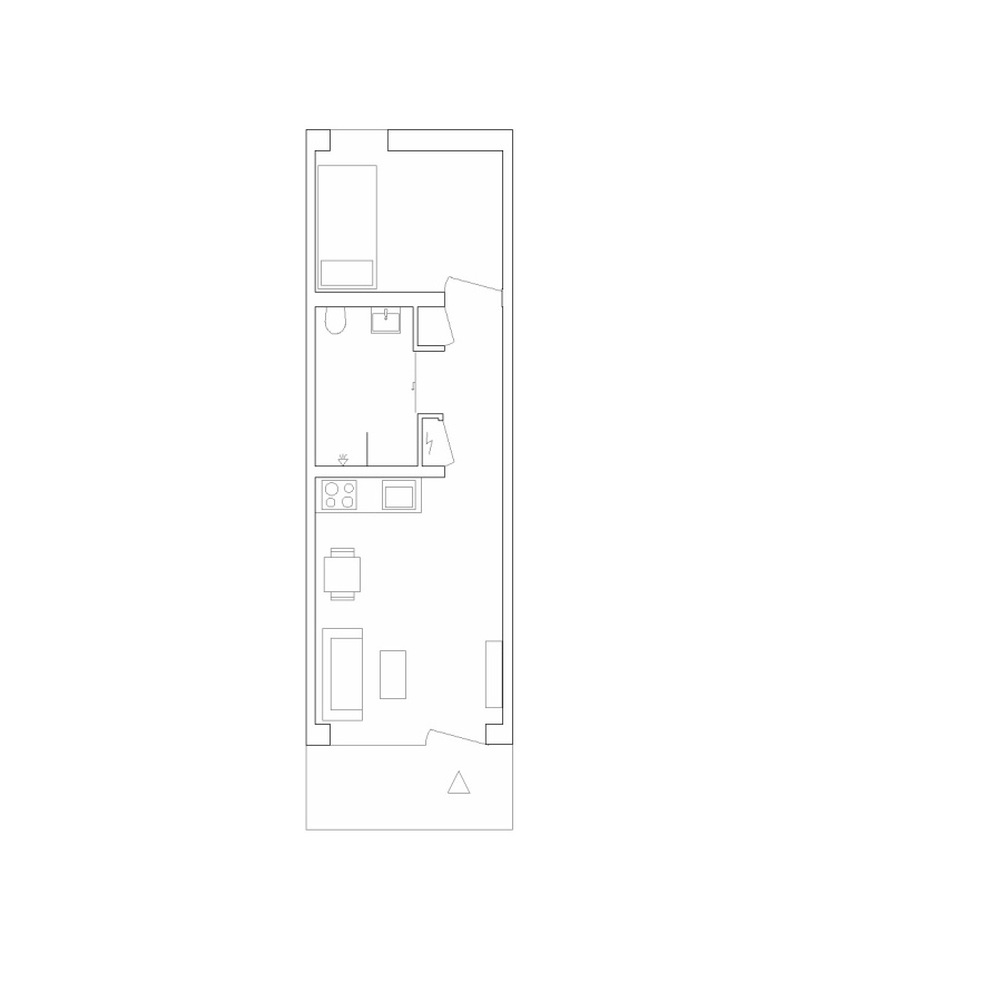
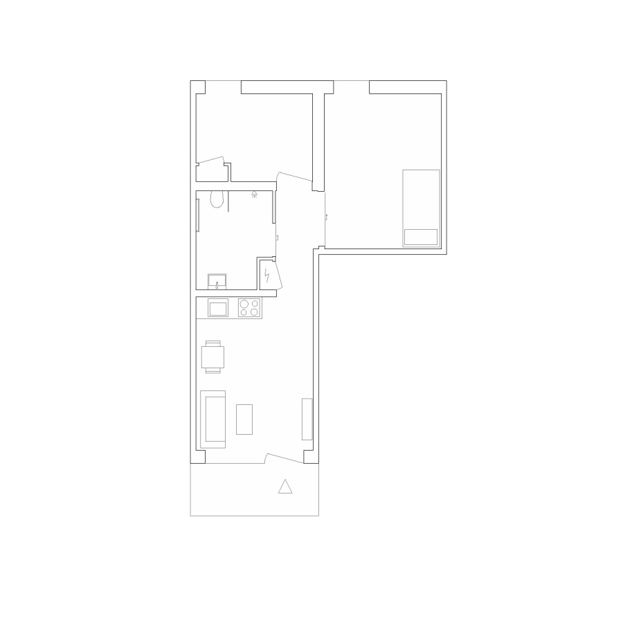
Programma: 22 zorgwoningen met gezamenlijke woonkamers en ruimten voor begeleiding

Locatie Warnsveld, Nederland

Jaar 2024

Volgend project

 

de Kleine Wereld