vectori_logo

Biobased en modulair bouwsysteem

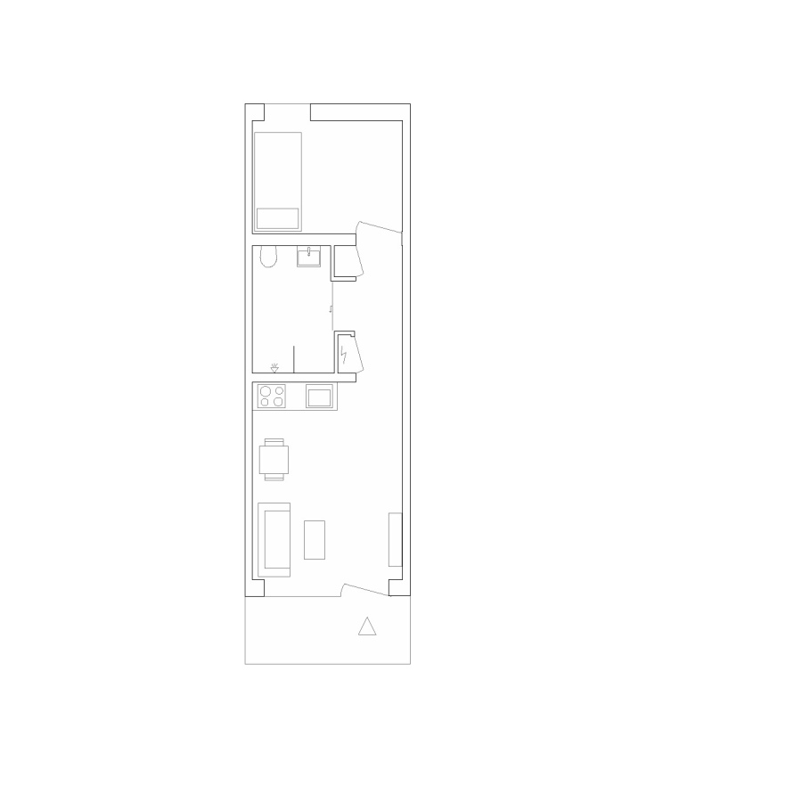
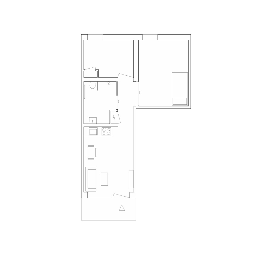
mHome staat voor een nieuwe manier van bouwen: modulair, duurzaam, flexibel, losmaakbaar én betaalbaar. Het bestaat uit biobased bouwmodules die slimme antwoorden geven op uiteenlopende huisvestingsvraagstukken. mHome biedt vrijheid om te wonen en te werken waar u wilt in een dampopen en gezond binnenklimaat met veel comfort.

Het gebouwde volume wordt samengesteld uit modulaire bouwstenen die op verschillende manieren geschakeld en gestapeld kunnen worden. Door de slimme schakelingen heeft de woning een privé terras én een collectieve tuin. De schakeling geeft karakter en identiteit aan de gezamenlijke tuin.

De klimaat-adaptieve buitenruimte wordt in co-creatie met de bewoners ingevuld met verschillende functie’s, zoals een speeltuin, een moestuin en een wilde bloementuin. In het collectieve paviljoen is plek voor gezamenlijke functies als bergingen, wasmachines, fietsenstalling en een gedeelde atelier en/of woonkamer.

We geloven in een vergaande transitie van de bouwindustrie om antwoorden te bieden aan de grote maatschappelijke vraagstukken; zoals woningtekort, sociale isolatie, emissies van schadelijke stoffen en materiaaltekort. Een industrialisering van de woningbouw in Nederland is een belangrijke peiler om tot goede, comfortabele en betaalbare woonruimte voor iedereen te komen. Daarom is vector-i partner van mHome, een biobased en circulair modulair bouwsysteem met een positieve CO2 impact.

 

Opdrachtgever mHome

Ontwikkelaar mHome

Landschapsarchitect Felixx Landscape Architects & Planners

Locatie Modulair bouwconcept

Jaar 2022

Volgend project

 

Verhoogde dijk